泉州市自然资源和规划局关于泉州经济技术开发区清濛园区单元控制性详细规划动态维护方案的公告
时间:2021-11-22 17:20
浏览量:
扫一扫在手机上查看当前页面
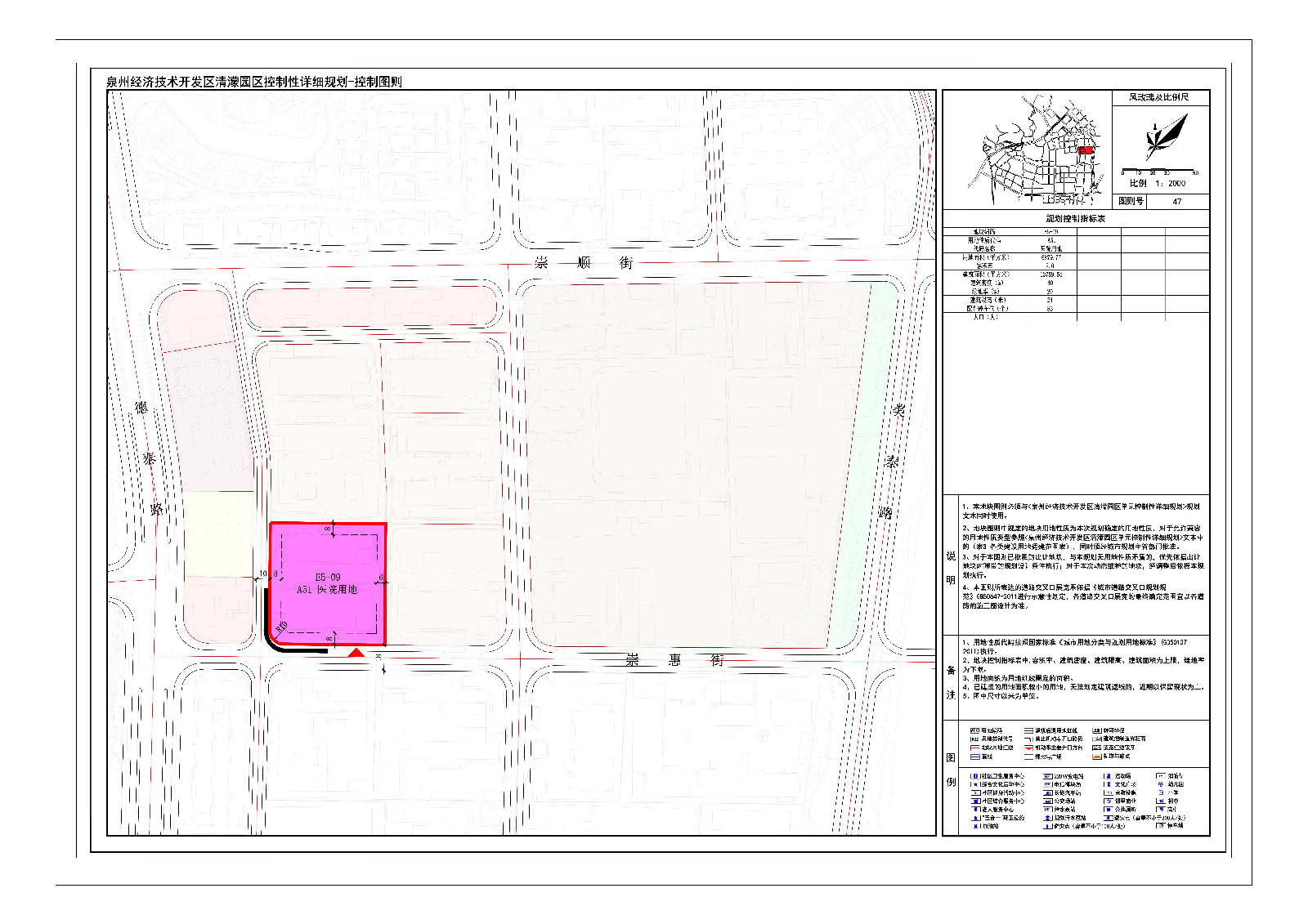
泉州经济技术开发区清濛园区单元控制性详细规划动态维护方案已经法定程序获得泉州市人民政府批复(泉政函〔2021〕78号),根据《中华人民共和国城乡规划法》及相关法规,现将该规划内容予以公布。
泉州市自然资源和规划局
2021年11月22日
扫一扫在手机上查看当前页面
国家部委网站
各省市政府网站
福建省设区市政府网站
友情链接
自然资源和规划局相关网站
网站标识码:3505000087
闽公网安备:35050302000632号闽ICP备11002902号-5
联系电话:0595-22769913,22769919维护联系方式:22171589
电子邮箱:qzszyghj@163.com版权所有:泉州市自然资源和规划局
主办单位:泉州市自然资源和规划局维护单位:泉州市自然资源和规划信息中心
为确保最佳浏览效果,建议您使用以下浏览器版本:IE浏览器9.0版本及以上; Google Chrome浏览器 63版本及以上; 360浏览器9.1版本及以上,且IE内核9.0及以上。