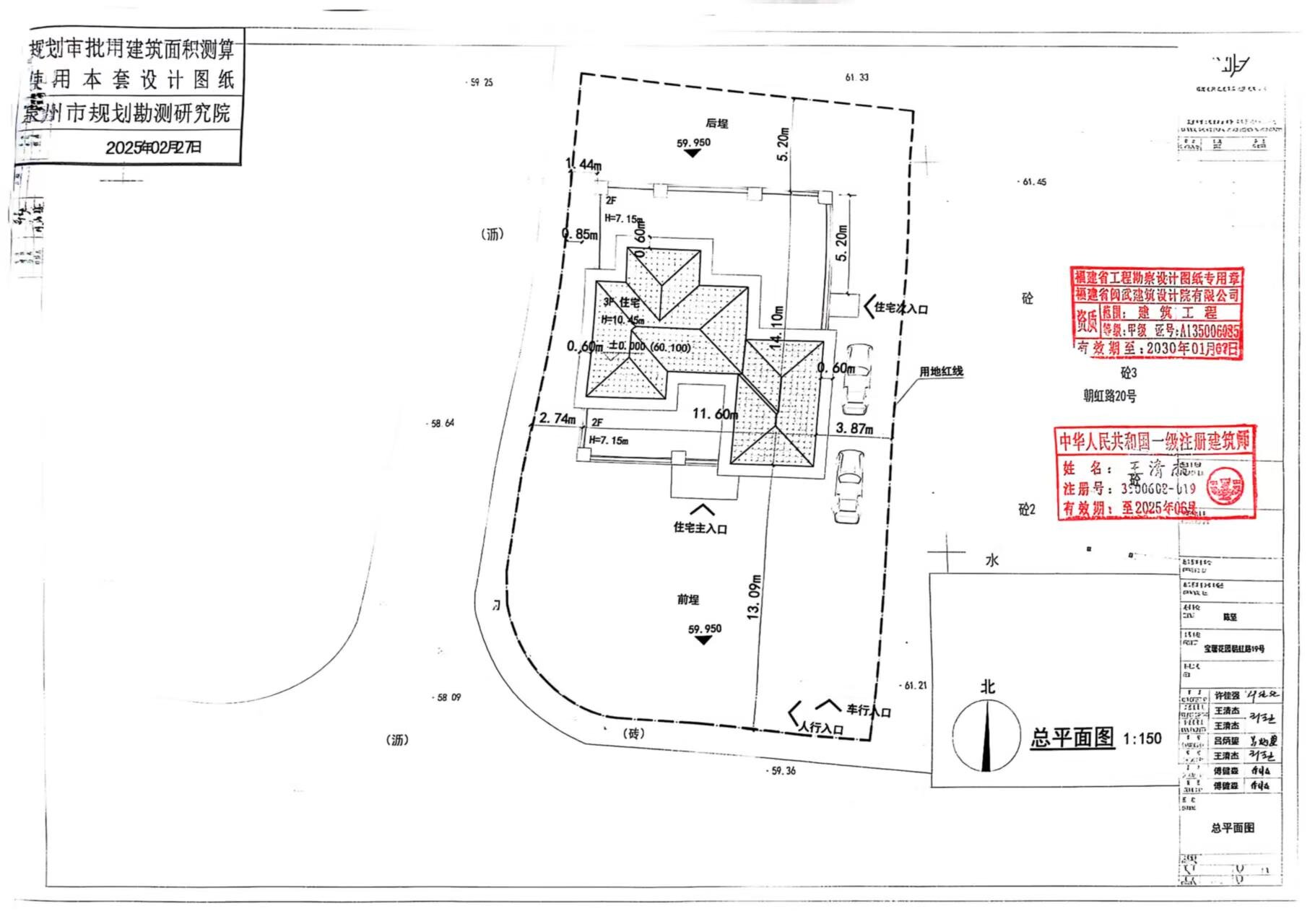
丰泽区疏港路宝珊花园朝虹路19号私有危房改造项目《建设工程规划许可证》批前公示
时间:2025-04-25 15:17
浏览量:
扫一扫在手机上查看当前页面
国家部委网站
各省市政府网站
福建省设区市政府网站
友情链接
自然资源和规划局相关网站
网站标识码:3505000087
闽公网安备:35050302000632号闽ICP备11002902号-5
联系电话:0595-22769913,22769919维护联系方式:22171589
电子邮箱:qzszyghj@163.com版权所有:泉州市自然资源和规划局
主办单位:泉州市自然资源和规划局维护单位:泉州市自然资源和规划信息中心
为确保最佳浏览效果,建议您使用以下浏览器版本:IE浏览器9.0版本及以上; Google Chrome浏览器 63版本及以上; 360浏览器9.1版本及以上,且IE内核9.0及以上。